Amsterdam

Alma Tademastraat 90

Vraagprijs: € 550.000,-

kenmerken

Omschrijving

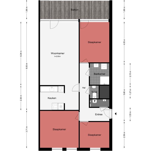
***English text below*** Charmant en ruim 3/4-kamerappartement (87 m²) met zonnig balkon – Perfect gelegen in Amsterdam West! Ben je op zoek naar een ruim en licht appartement in een levendige, maar groene omgeving? Dit charmante 4-kamerappartement van 87 m² heeft een heerlijk balkon van 13 m² op het westen en ligt op een toplocatie in Amsterdam West! Ook de erfpacht is eeuwigdurend afgekocht! De woning heeft een eigen parkeerplaats en riante berging. Ideale ligging De woning ligt net buiten de Ring, met uitstekende verbindingen naar het centrum en diverse voorzieningen. Binnen 10 minuten fiets je naar hartje Amsterdam, terwijl het winkelgebied rondom Bos en Lommerplein en Mercatorplein op loopafstand ligt. Met diverse tram-, bus- en metroverbindingen in de buurt, en de Ring A10 om de hoek, is de bereikbaarheid optimaal. Voor ontspanning ben je hier ook op de juiste plek: het Rembrandtpark ligt letterlijk om de hoek, het Vondelpark is binnen 10 minuten fietsen bereikbaar en de Sloterplas ligt op slechts 5 minuten lopen. Ook voor gezinnen is dit een prettige buurt, met speeltuinen en kindvriendelijke pleinen in de directe omgeving. Indeling Binnenkomst in een ruime hal met meterkast en toegang tot alle vertrekken. De lichte en ruime woonkamer heeft grote ramen en biedt directe toegang tot het balkon op het westen – perfect om van de middag- en avondzon te genieten! De keuken is voorzien van een standaard keukenblok. Daarnaast zijn er drie slaapkamers, een ruime badkamer met douche en wastafel en een wasmachineaansluiting. Het toilet is separaat en beschikt over een wastafeltje. De woning beschikt over een mechanische ventilatie-unit. Bijzonderheden -87m2 woonoppervlakte (NEN2580) -Balkon 13m2 op het westen -Lift aanwezig -Gelegen op de bovenste verdieping (5e etage) -EEUWIGDUREND afgekochte erfpacht  -Energielabel A -Riante berging van 12m2  -WTW installatie aanwezig gasgestookt. -C.V. Ketel: Intergas Kombi Kompakt HR 22 van 2006 -Eigen parkeerplaats  -Servicekosten bedragen € 199,29 per maand (inclusief parkeerplaats) -Prachtig uitzicht ______________________________________________________ ***English text*** Charming and Spacious 3/4-Room Apartment (87 m²) with Sunny Balcony – Perfectly Located in Amsterdam West! Are you looking for a spacious and bright apartment in a lively yet green environment? This charming 4-room apartment of 87 m² features a delightful 13 m² west-facing balcony and is situated in a prime location in Amsterdam West! Plus, the leasehold has been perpetually bought off! The property includes a private parking space and a large storage room. Ideal Location The apartment is located just outside the Ring Road, offering excellent connections to the city center and various amenities. You can reach the heart of Amsterdam within 10 minutes by bike, while the shopping areas around Bos en Lommerplein and Mercatorplein are within walking distance. With multiple tram, bus, and metro connections nearby, and the A10 highway around the corner, accessibility is optimal. This location is also perfect for relaxation: Rembrandt Park is literally around the corner, Vondelpark is just a 10-minute bike ride away, and Sloterplas is only a 5-minute walk. The neighborhood is also very family-friendly, with playgrounds and child-friendly squares in the immediate vicinity. Layout You enter into a spacious hallway with a utility closet and access to all rooms. The bright and spacious living room has large windows and direct access to the west-facing balcony – perfect for enjoying the afternoon and evening sun! The kitchen is equipped with a standard kitchen unit. There are three bedrooms, a spacious bathroom with a shower, sink, and washing machine connection, and a separate toilet with a small sink. The apartment features a mechanical ventilation system. Key Features -87 m² living space (NEN2580 certified) -West-facing balcony (13 m²) -Elevator in the building -Located on the top floor (5th floor) -Leasehold perpetually bought off -Energy label A -Spacious storage room (12 m²) -WTW system present, gas-fired. -Central heating boiler: Intergas Kombi Kompakt HR 22 from 2006. -Private parking space -Service costs: €199.29 per month (including parking space) -Stunning view

Meer lezen

Voel je alvast thuis in deze woning

Algemeen

Straat en huisnummer

Alma Tademastraat 90

Plaats

Amsterdam

Postcode

1061 VK

Status

Verkocht
Eigenschappen

Inhoud

290 m3

Bouwjaar

2006

Aantal kamers

4

Aantal slaapkamers

3

Woonoppervlak

87 m2
Verwarming en isolatie

Verwarming

CV ketel, Warmte terugwininstallatie

Type dak

Plat dak
Prijs en aanvaarding

Koopprijs

550.000

Aanvaarding

In overleg

Zie jij jezelf hier al
wonen?

Kun je je al voorstellen hoe het is om hier thuis te komen? Als deze woning je aanspreekt en je nieuwsgierig bent naar de mogelijkheden, dan komen we graag met je in contact. Neem vrijblijvend contact met ons op voor meer informatie of om een bezichtiging te plannen. Ons team van Scholten Makelaars staat klaar om je te begeleiden in elke stap van het proces. We helpen je graag verder!

Wij staan
voor je klaar