Amsterdam

Tweede Van der Helststraat 6-1

Vraagprijs: € 575.000,-

kenmerken

Omschrijving

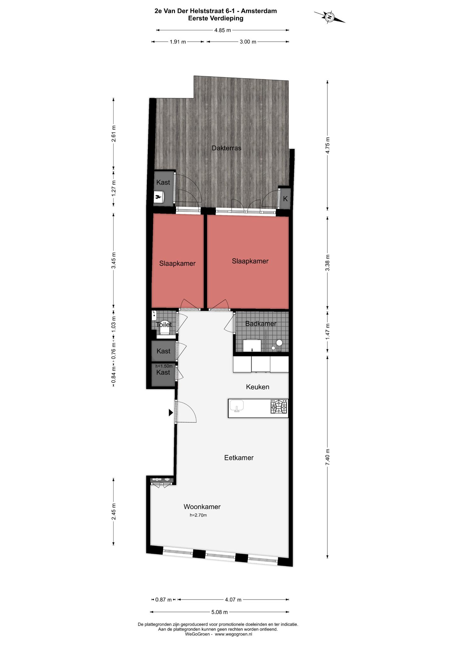
***English text below*** Heerlijk licht en luxe gerenoveerd appartement (ca. 59 m²) gelegen in de bruisende Pijp met vrij uitzicht op de Oranjekerk! De woning beschikt over twee goed bemeten slaapkamers, een moderne keuken met kookeiland en luxe inbouwapparatuur. Aan de achterzijde van het pand bevindt zicht een heerlijk diep terras mét verlichting (ca.21m2). Bovendien is de woning gelegen op eigen grond en is de fundering vernieuwd! Snel meer zien? Kom binnen! Ligging & Bereikbaarheid Het appartement bevindt zich in een karakteristiek pand en mede daarom geniet je in deze woning van ‘the best of both worlds’: Een centrale, doch rustige locatie in de bruisende en populaire Pijp. In de nabije omgeving zijn talloze mogelijkheden voor de dagelijkse boodschappen zoals Albert Heijn, Jumbo, Marqt, Kruidvat en Etos, maar ook de Albert Cuypmarkt bevindt zich binnen een straal van 500 meter. Daarnaast is er een ruim horeca aanbod met restaurants en cafés zoals VOLT, Brouwerij Troost, Badcuyp, de Pilsvogel, de Duvel en Impero Romano. Het Gerard Douplein en de Van Woustraat bevinden zich op 5 fietsminuten waar diverse hippe koffietentjes, restaurants en uitgaansgelegenheden te vinden zijn. Binnen enkele minuten lopen treft u de Ferdinand Bolstraat en Ceintuurbaan, vol leuke winkels en boetieks. Op steenworp afstand ligt het Sarphatipark. De woning heeft een gunstige ligging ten opzichte van diverse uitvalswegen en meerdere opties voor het openbaar vervoer bevinden zich om de hoek. Parkeren geschiedt middels parkeervergunning maar is tegen betaling ook mogelijk voor de deur. Indeling: Bij binnenkomst van de woning komt u direct uit in de open en ruime woonkamer, die zich aan de voorzijde van het appartement bevindt. Door de grote raampartijen en ligging vangt de woning enorm veel natuurlijk licht en privacy. Centraal gelegen in het appartement bevindt zich de moderne keuken met kookeiland en luxe inbouwapparatuur zoals een Bora inductieplaat met downdraft, een Siemens vaatwasser, Siemens combi-oven, een koel- en vriescombinatie en tot slot een Quooker. Aan de achterzijde van het appartement treft u de twee goed bemeten slaapkamers, die beiden toegang bieden tot het diep opgezette terras. De wasmachineaansluiting en cv-ketel(bj 2024) bevinden zich in een kast op het terras. De badkamer beschikt over vloerverwarming, spiegelverwarming, een ruime inloopdouche en een wastafel met teakhouten meubel. Vanuit de hal is het separate toilet met fontein en vloerverwarming te vinden. Ten slotte beschikt het appartement over een geluid geïsoleerd plafond! Vereniging van Eigenaren Vereniging Van Eigenaars Tweede Van Der Helststraat 2, 4, 6 en Van Ostadestraat 141 Te Amsterdam: Het betreft een actieve vereniging van eigenaren professioneel beheerd door Randstad Vastgoed Groep VVE beheer. De maandelijkse bijdrage is €118,04,- voor het appartement en bevatten o.a. een bijdrage voor de opstalverzekering en sparen voor toekomstig onderhoud. Relevante stukken zijn op aanvraag. In 2025 is de VVE plan groot onderhoud uit te voeren met onder andere het schilderwerk en dak onderhoud. Er is momenteel een kasreserve van ca. € 89.976,- Bijzonderheden: - Woonoppervlakte van 59m2 en 1,3m2 overige inpandige ruimte (NEN2580 meetrapport aanwezig) - Diep terras van circa 21m2 gelegen aan de achterzijde - Courante indeling met 2 ruime slaapkamers! - Vernieuwde fundering! - Gelegen op eigen grond, dus géén erfpacht - Voorzien van geluid geïsoleerd plafond! - Volledig voorzien van dubbelglas - Voorzien van Philips Hue spotjes en Google Nest thermostaat - Bouwjaar: 1900 - Gezonde en tevens professioneel beheerde VVE, MJOP aanwezig - VvE bijdrage: €118,04,- per maand, - Verwarming en warmwater via Cv-ketel (2024); - Parkeren via vergunningstelsel - Oplevering in overleg. Mis deze unieke kans niet en maak snel een afspraak voor een bezichtiging! De verkoopinformatie is met grote zorgvuldigheid samengesteld doch voor de juistheid van de inhoud kunnen wij niet instaan en er kunnen derhalve geen rechten aan worden ontleend. De inhoud is puur informatief en mag niet worden beschouwd als een aanbod. Daar waar gesproken wordt over inhoud, oppervlakten of afmetingen moeten deze worden beschouwd als indicatief en als circa maten. U dient als koper zelf onderzoek te verrichten naar zaken die voor u van belang zijn. Wij raden u in dat verband aan uw eigen NVM-makelaar in te schakelen. --- Lovely bright and luxuriously renovated apartment (approx. 58 m²) located in the bustling Pijp area with unobstructed views of the Oranjekerk! The house has two good sized bedrooms, a modern kitchen with cooking island and luxury appliances. At the rear of the property is a lovely deep terrace with lighting. Moreover, the house is located on private land and the foundation has been renewed! Want to see more? Come inside! Location & accessibility The apartment is located in a characteristic building and therefore you will enjoy 'the best of both worlds': A central, yet quiet location in the vibrant and popular Pijp area. In the vicinity are numerous opportunities for daily shopping such as Albert Heijn, Jumbo, Marqt, Kruidvat and Etos, but also the Albert Cuyp market is within a radius of 500 meters. There is also a wide range of restaurants and cafes such as VOLT, Brouwerij Troost, Badcuyp, the Pilsvogel, the Duvel and Impero Romano. The Gerard Douplein and the Van Woustraat are 5 biking minutes away where you will find several hip coffee shops, restaurants and entertainment venues. Within a few minutes walk you will find the Ferdinand Bolstraat and Ceintuurbaan, full of nice stores and boutiques. Just steps away is the Sarphatipark. The house is conveniently located for several highways and several public transport options are just around the corner. Parking is by parking permit but is also possible at the door against payment. Layout: Upon entering the house, you immediately enter the open and spacious living room, which is located at the front of the apartment. Due to the large windows and location, the apartment catches a huge amount of natural light and privacy. Centrally located in the apartment is the modern kitchen with cooking island and luxury appliances including a Bora induction hob with downdraft, a Siemens dishwasher, Siemens combination oven, a fridge-freezer and finally a Quooker. At the rear of the apartment you will find the two well-sized bedrooms, both of which provide access to the deep terrace. The washing machine connection and central heating boiler (2024) are located in a closet on the terrace. The bathroom has underfloor heating, mirror heating, a spacious walk-in shower and a sink with teak furniture. From the hall is the separate toilet with fountain and underfloor heating. Finally, the apartment has a soundproof ceiling! Owners Association Tweede Van Der Helststraat 2, 4, 6 and Van Ostadestraat 141 in Amsterdam: This is an active owners association professionally managed by Randstad Vastgoed Groep VVE management. The monthly contribution is €118,04,- for the apartment and includes a contribution for building insurance and savings for future maintenance. Relevant documents are available on request. In 2025 the VVE plans to perform major maintenance including painting and roof maintenance. There is currently a cash reserve of approximately €89,976. Details: - Living area of 58m2 and 1.3m2 other indoor space (NEN2580 measurement report available) - Deep terrace of approximately 21m2 located at the rear - Courant layout with 2 spacious bedrooms! - Renewed foundation! - Located on private land, so no leasehold - Equipped with soundproof ceiling! - Fully double glazed - Equipped with Philips Hue spotlights and Google Nest thermostat - Built in 1900 - Healthy and professionally managed association, MJOP present - Association contribution: € 118, - per month, - Heating and hot water via central heating boiler (2024); - Parking via permit system - Delivery in consultation. Do not miss this unique opportunity and make an appointment for a viewing soon! The sales information has been compiled with great care, but we cannot guarantee the accuracy of the content and therefore no rights can be derived from it. The content is purely informative and should not be regarded as an offer. Where reference is made to content, surface areas or dimensions, these should be regarded as indicative and approximate. As a buyer, you should conduct your own research into matters of importance to you. We advise you to use your own NVM estate agent.

Meer lezen

Voel je alvast thuis in deze woning

Algemeen

Straat en huisnummer

Tweede Van der Helststraat 6-1

Plaats

Amsterdam

Postcode

1072 PC

Status

Verkocht
Eigenschappen

Inhoud

200 m3

Bouwjaar

1900

Aantal kamers

3

Aantal slaapkamers

2

Woonoppervlak

59 m2
Verwarming en isolatie

Verwarming

CV ketel

Type dak

Samengesteld dak
Prijs en aanvaarding

Koopprijs

575.000

Aanvaarding

In overleg

Zie jij jezelf hier al
wonen?

Kun je je al voorstellen hoe het is om hier thuis te komen? Als deze woning je aanspreekt en je nieuwsgierig bent naar de mogelijkheden, dan komen we graag met je in contact. Neem vrijblijvend contact met ons op voor meer informatie of om een bezichtiging te plannen. Ons team van Scholten Makelaars staat klaar om je te begeleiden in elke stap van het proces. We helpen je graag verder!

Wij staan
voor je klaar